Atrium Square – 4014 Macleod Tr S
4014 Macleod Trail South, Calgary, AB T2G 2R7, Canada
4014 Macleod Trail South, Calgary, AB T2G 2R7, CanadaProperty Details
- Type: Office, Retail
- Category: For Lease
- Status: Available Immediately
- ICSC Property: ICSC Property
- Year built: 1978
Ask an Agent About This Property
Property Description
- Description:
$30 psf Tenant allowance on 5 Year Term
- Quality office building located on Macleod Trail
- Immediately adjacent to the 39th Avenue LRT station
- Underground and surface parking available
- Recently renovated common areas, exterior and atrium
- High retail exposure - Macleod Trail Frontage
- Operating costs includes utilities
- Pylon signage available
Sale / Lease Information
- Rooms:
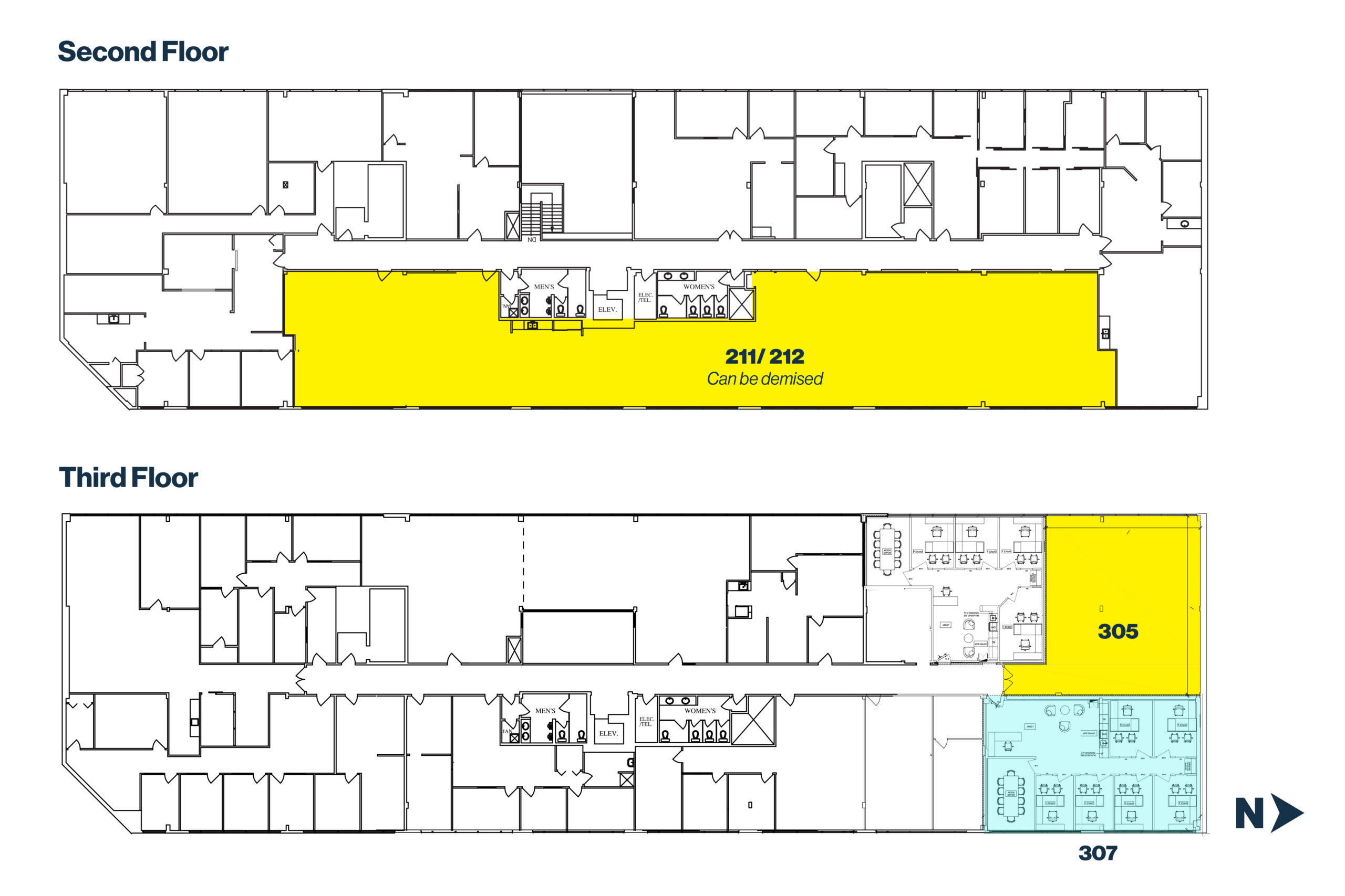
Unit Lease Rate Area (sq ft) Operating Cost (per sq ft) Unit Size (sq ft) 211/212 Market Can be demised $15.19 4,873 305-A Market $15.19 1,699 305-B Market $15.19 1,698 305-C Market $15.19 1,261
Property Video
- Video:

