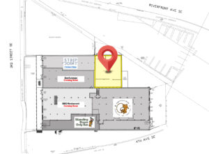
Retail Opportunity – Distinctive Riverfront Setting, 417 Riverfront Ave SE
417 Riverfront Ave SE, Calgary, AB T2G 0C2, Canada
417 Riverfront Ave SE, Calgary, AB T2G 0C2, CanadaProperty Details
- Type: Retail
- Category: For Lease
- Status: Available Immediately
- ICSC Property: ICSC Property
- Year built: 2020
Ask an Agent About This Property
Property Description
- Description:
• Prime Riverfront Exposure – Directly across from the Bow River and steps to the Bow River Pathway.
• Built-In Residential Density – Surrounded by high-rise condos with immediate customer base.
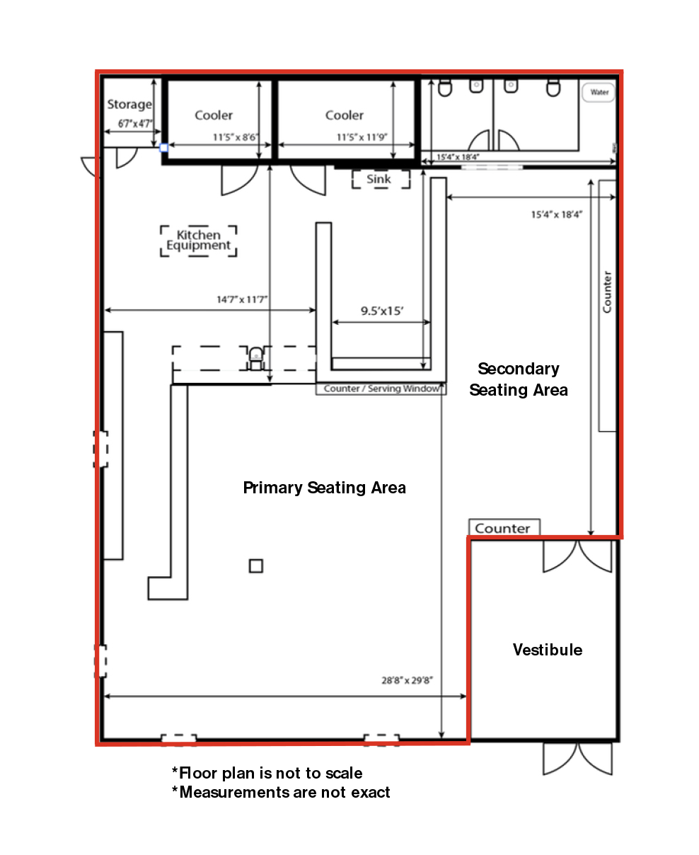
• +2,600 SF Open Layout – Flexible, efficient footprint for multiple concepts.
• Food-Ready Infrastructure – Includes walk-in cooler and freezer.
• Ideal for Café or QSR – Perfect for quick-service or specialty food users.
• Loft-Style Character – High ceilings with a warehouse-inspired vibe.
• Inner-City Destination – Captures daily pathway traffic and local residents.
Sale / Lease Information
- Rooms:
Operating Cost (per sq ft) Unit Size (sq ft) $8.77 2,635

