Ron Ebbesen Twin Arena Restaurant/Lounge: 200 East Lake Crescent NE, Airdrie
200 East Lake Crescent NE, Airdrie, AB T4A 2H8, Canada
200 East Lake Crescent NE, Airdrie, AB T4A 2H8, CanadaProperty Details
- Type: Retail
- Category: For Lease
- Status: Available 30-days
- ICSC Property: ICSC Property
Ask an Agent About This Property
Property Description
- Description:
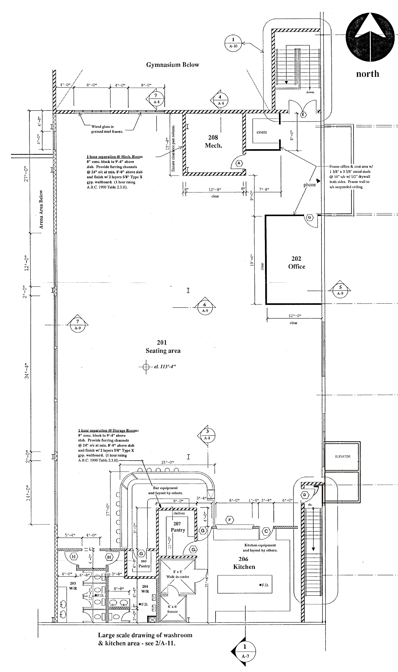
• Turnkey second-floor restaurant and lounge with elevator access and direct views overlooking the ice rink.
• Fully equipped kitchen and bar including walk-in fridge and freezer, commercial cooking equipment, prep stations, and dishwashing area.
• Event-capable space suitable for weddings, banquets, tournaments, and large private receptions.
• Furniture and fixtures included, with seating for approximately 120 guests and extensive built-in storage.
• Strong captive customer base generated by daily arena programming, leagues, tournaments, and public skating.
• Located within the recently upgraded Ron Ebbesen Twin Arena, enhanced for long-term operation and improved accessibility.
• Situated in the growing City of Airdrie, offering a family-focused demographic and close proximity to Calgary.
Sale / Lease Information
- Rooms:
Lease Rate Unit Size (sq ft) Market 5,250

